Cheap Rebar Detailing Service Is Always Paid for Twice
In the construction industry, where precision and efficiency dictate both safety and profitability, the phrase “you get what you pay for” rings especially true when it comes to rebar detailing services. While it might be tempting for contractors, structural engineers, or project managers to choose the lowest-cost option, the long-term consequences of poor-quality detailing often lead to delays, budget overruns, and even structural risks. Simply put: cheap rebar detailing service is always paid for twice.
The Hidden Cost of Cheap Rebar Detailing Services
At NS Drafter, we take a different approach. We believe that every drawing and model we deliver should be ready for execution without question. We work with the mindset that every hour spent in the detailing phase saves exponentially more costs on the site.
On a construction site with over 500 people, the only one who didn’t have to ask what to do next… was the execution team holding your drawings.
That line stayed with us after a call with the main contractor. He told us, genuinely surprised, that it was the first time his team didn’t need a single clarification because the drawings were immediately clear. That’s when we knew the work had done its job.
Our team specializes in high-quality structural detailing and modeling services for reinforced concrete and steel structures, using advanced BIM software like Revit, Allplan, Tekla Structures, and Strakon. We don’t just draft, we model, coordinate, and think ahead.
For many of our international clients, we also provide outsourcing detailing and modeling for construction projects, enabling them to meet aggressive deadlines without compromising on quality.
Quality Over Quantity: Real-World Examples
Let’s talk about what sets us apart by examining a few real projects:
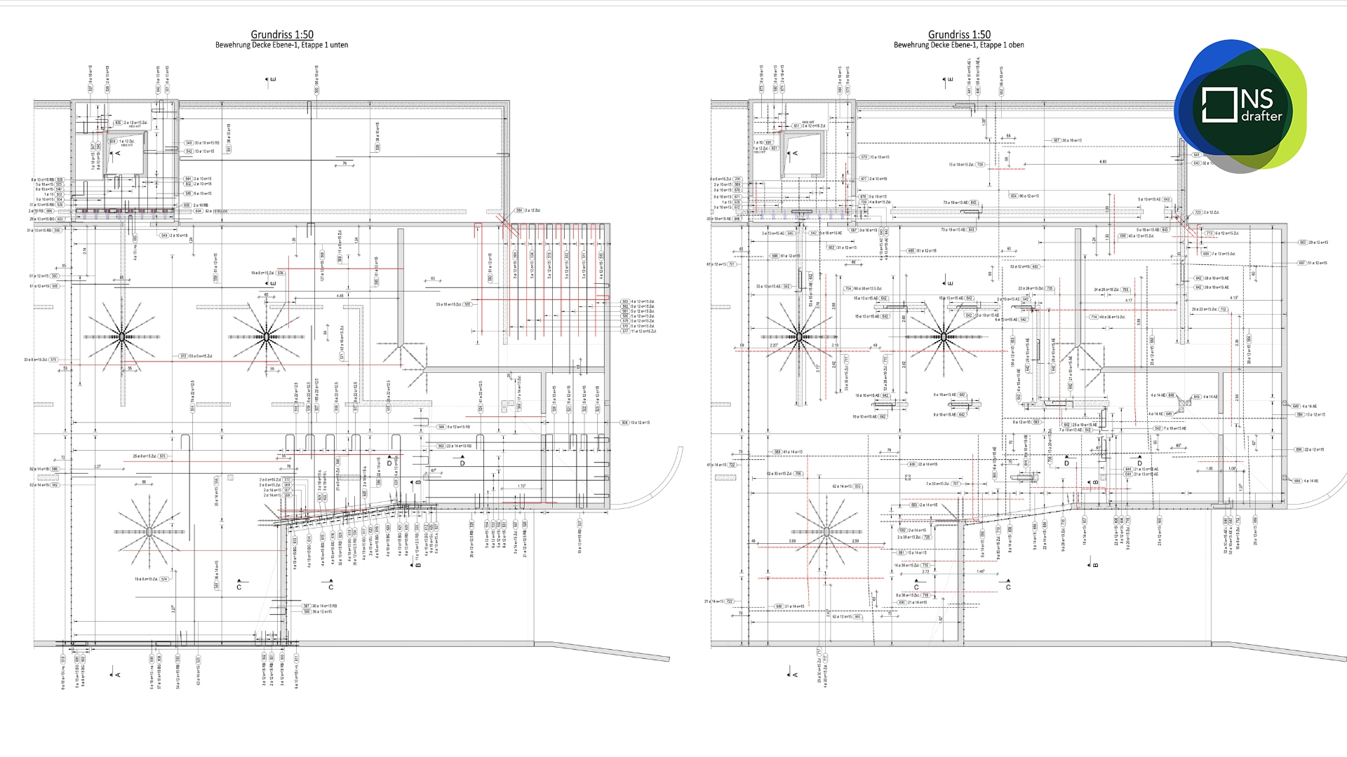
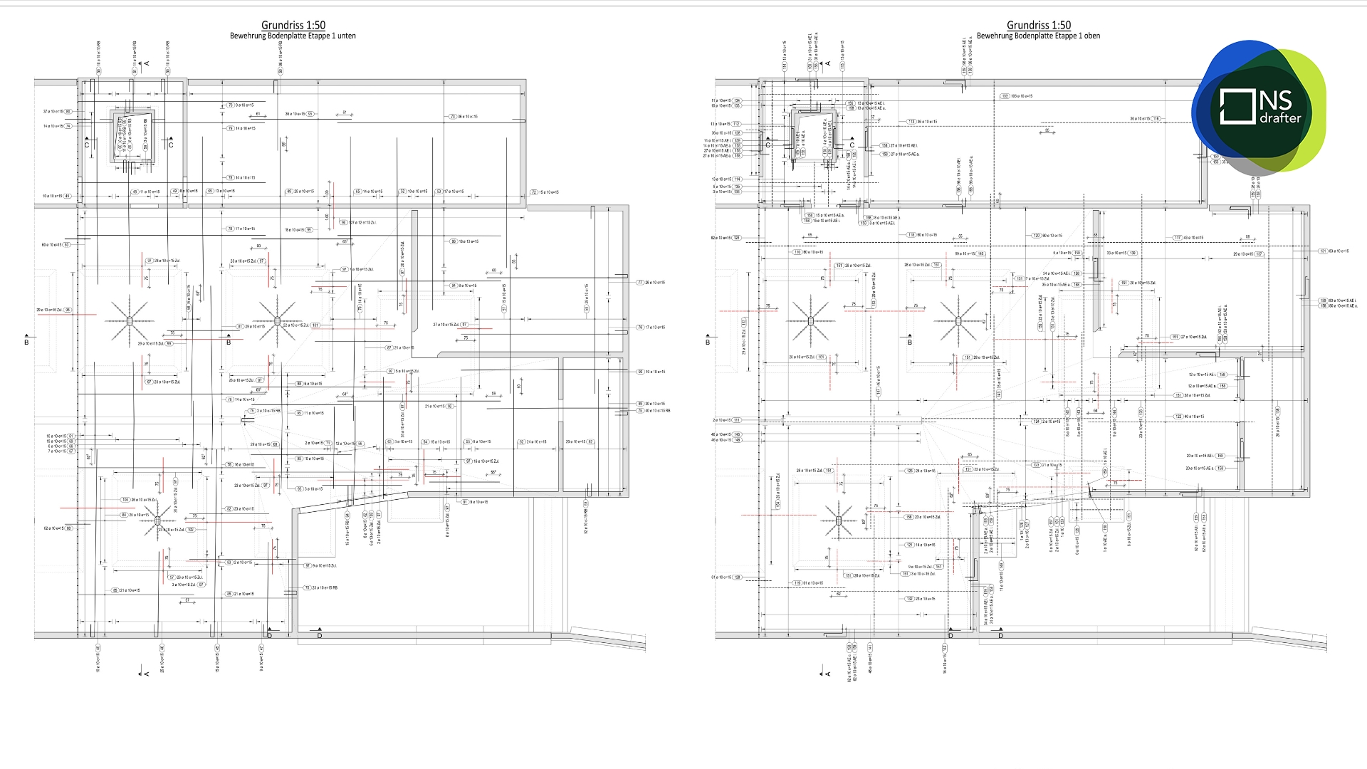
Railway Infrastructure
We did formwork and reinforcement 3D modeling, BIM coordination, and documentation for this railway infrastructure.


Our team provided complete BIM solutions that combined the power of Revit for formwork and Allplan for reinforcement modeling. The result was a fully coordinated workflow where every stakeholder, from engineers to site teams, had clear, clash-free documentation at every stage.
Warehouse with Mezzanine Floor – Logistics Hub, Canada
This project involved a steel-framed warehouse with an integrated mezzanine level, designed to serve as a regional logistics center. The mezzanine structure had to support dynamic loads from pallet racks, conveyor systems, and personnel walkways, which made load distribution detailing a top priority.


Using Tekla Structures 2025, we modeled the entire steel skeleton including primary beams, bracing systems, staircases, and handrail systems. The mezzanine structure required custom gusset plates and slotted connections to accommodate HVAC routing.
Thanks to Tekla Model Sharing, we collaborated in real time with the client’s engineering team in Ontario. Over 200 unique shop drawing elements were delivered ahead of schedule and passed fabrication QC with zero revisions.
Park Meadows – Residential Towers, Amsterdam
This fast-track residential project features two high-rise towers,19 and 17 stories, built using cutting-edge prefabrication techniques. A large portion of the reinforcement is pre-assembled into custom “KORF” elements by automated machines, allowing workers to place entire beams or wall reinforcements in one move.




We deliver detailed project documentation using ArmCAD for design purposes and BFW software for fabrication, ensuring seamless integration with the production line. Approximately 70% of the reinforcement is factory-made, while only 30% is tied manually on site.
Key highlights:
- Highly detailed plans to meet local regulations
- All wall openings are reinforced and drawn with precision
- Coordination with BFW software ensures exact placements, including carry-over bars for upper levels
- Use of modern formwork technology accelerates construction significantly
- Every drawing must be near-perfect to support rapid, error-free construction workflows
Exceptional accuracy and preparation allowed the client to drastically reduce on-site labor. Detailing quality directly enabled faster execution and minimized field errors. We have since completed multiple projects with this client.
Why Clients Choose To Stay With Us?
Our clients rarely come to us for the lowest bid. They come for accuracy, accountability, and consistency. Here’s what they get in return:
- Clash-free 3D models that integrate with formwork, MEP, and architectural elements.
- Clear and accurate shop drawings trusted by fabrication and site teams.
- Precise quantity takeoffs and placement drawings that reduce material waste
- Early detection of constructability issues through coordinated BIM workflows.
- Double-check process – it implies that every drawing goes through a two-level internal QA/QC process before being delivered to the client. This minimizes the risk of error and ensures maximum clarity.
- Direct access to experienced structural engineers and BIM specialists.
- Flexible resource allocation, since we have a significant manpower that consists mainly of rebar detailing experts – we can scale up quickly to meet demanding project schedules.
- Fast and reliable communication – particularly during critical phases such as fabrication and site execution.
We don’t just draw structures. We solve problems before they become construction issues.
The Real Value of Professional Rebar/Steel Detailing Services
Choosing a quality rebar detailing service means fewer RFIs, smoother site coordination, and a procurement process that runs as planned instead of being constantly adjusted. It establishes trust in the documentation at every stage of the project, from fabrication to installation to final inspection, because the information teams rely on is clear, consistent, and complete.
A well-structured rebar and steel detailing services do more than produce drawings. They align design intent with real construction conditions, reduce guesswork for fabricators, and help site teams work without interruptions.
Yes, we may not be the cheapest option upfront. But if a lower-priced service leads to a single fabrication mistake, one delayed concrete pour, or one shipment of incorrect steel, the initial savings disappear instantly. In construction, the true cost is reflected not in the invoice, but in how smoothly the project flows once work begins.
So you need to ask yourself… was it really cheaper in the end?
A Note to General Contractors, Engineers, and Fabricators
Our rebar and steel detailing service are built around one objective: to deliver drawings and models that can be used immediately, without follow-up questions or on-site corrections. Every detail is well coordinated with formwork, connections, and sequencing, so reinforcement and/or steel elements support the construction process, not just the design intent.
When detailing is approached this way, fabrication teams work with certainty, site crews move without hesitation, and project schedules remain intact. Our role is to remove uncertainty from execution by resolving problems before they ever reach the site.
Conclusion: Invest in Quality
In structural detailing and 3D modeling, as in construction overall, precision matters. Speed matters. But above all, quality matters.
The cheapest offer often hides the most expensive consequences.
At NS Drafter, we don’t “cut corners”. We model them, accurately, every time.
Let’s talk about your next project.


